VyprodánoArchivovaný



ARCHIVOVANÝ PRODUKT

Odvlhčovač Dantherm mobilní 230V CDT 40 MK III
Cena na poptání

Příslušenství Dantherm elektrický ohřev pro CDP/CDF 40
12 737,00 Kč bez DPH
15 411,77 Kč s DPH
15 411,77 Kč s DPH
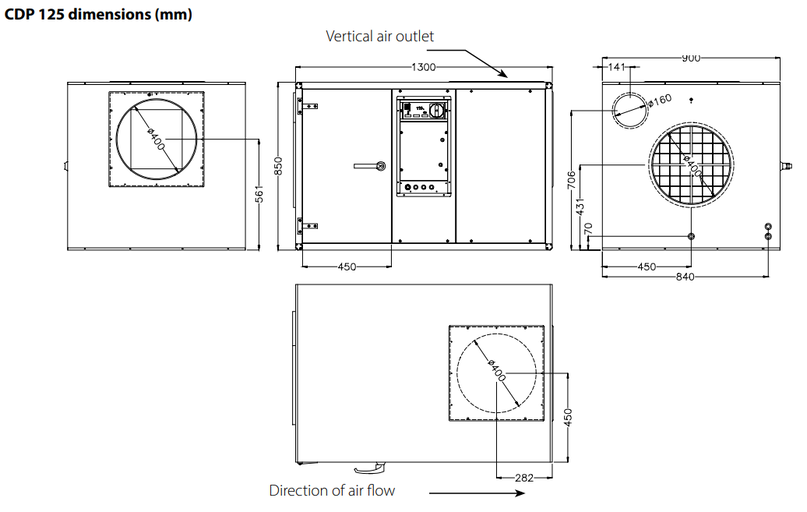
Odvlhčovač Dantherm bazénový potrubní do strojovny 400V CDP 125 W 3F
Odvlhčovač Dantherm CDP 125 W 3F je bazénový odvlhčovač vhodný pro velké privátní bazény, hotelové bazény a wellness centra. Lze také využít v tělocvičnách, sálech či výrobních halách s vysokou vlhkostí. Model se instaluje do strojovny s napojením na potrubí. Tak aby odvlhčovač spolehlivě plnil svou funkci, instalace je vhodná pro prostory s vodní plochou bazénu o 75m2.
Katalogové číslo:
351556
Kategorie: Odvlhčovače, Archivované produkty, Archivované produkty
Klíčové vlastnosti
- Odvlhčovací výkon 124l/24h (při teplotě 28°C a vlhkosti 60% RH)
- Provozní teplotní rozsah 20-38°C (při doplnění odmrazovací sady je možné provozovat jednotku od 15°C)
- Vzduchový výkon 2500 m³/h
- Sendvičové panely s 45mm izolací
- Zahrnuje vodou chlazený kondenzátor
- Nízká spotřeba energie
- Tichý provoz
- Jednoduché nastavení a ovládání
- Vhodné pro velké bazény
- Výměníky ošetřené epoxidovým nátěrem
- Třída odolnosti vůči korozi C4
- Zabudovaný filtr na sání
- Servisní dveře a ovládací panel s možností montáže na opačnou stranu
- Nasávání v horizontálním směru
- Výfuk v horizontálním nebo vertikálním směru
- Krytí IPX4
- El. napájení 3x400V
Volitelné příslušenství
- Prostorový hygrostat
- Potrubní hygrostat
- Prostorový termostat
- Sada pro monitorování poruch
- Odmrazovací sada
- Nástěnné konzoly
- Antivibrační podpěry
- Topný vodní výměník
Značka | |
---|---|
Provedení | |
Label | |
Typ | |
Provozní rozsah teplota [C] | |
Odvlhčovací výkon při 30°C | |
Vzduchový výkon (Qv/m3) |
Katalogový list
Uživatelský návod
Pro odemknutí kompletní technické dokumentace se prosím přihlaste. Následně vyčkejte na naše schválení pro zobrazení dokumentace.
PŘÍSLUŠENSTVÍ K PRODUKTU
Cena na poptání
VyprodánoArchivovaný
SKU:
175401
3 250,00 Kč bez DPH
3 932,50 Kč s DPH
3 932,50 Kč s DPH
SKU:
513321
3 745,00 Kč bez DPH
4 531,45 Kč s DPH
4 531,45 Kč s DPH
SKU:
516301
4 878,00 Kč bez DPH
5 902,38 Kč s DPH
5 902,38 Kč s DPH
SKU:
175382
5 013,00 Kč bez DPH
6 065,73 Kč s DPH
6 065,73 Kč s DPH
SKU:
175368
Cena na poptání
VyprodánoArchivovaný
SKU:
019401
Cena na poptání
VyprodánoArchivovaný
SKU:
516310
34 552,00 Kč bez DPH
41 807,92 Kč s DPH
41 807,92 Kč s DPH
SKU:
570027